MODELS

models_banner
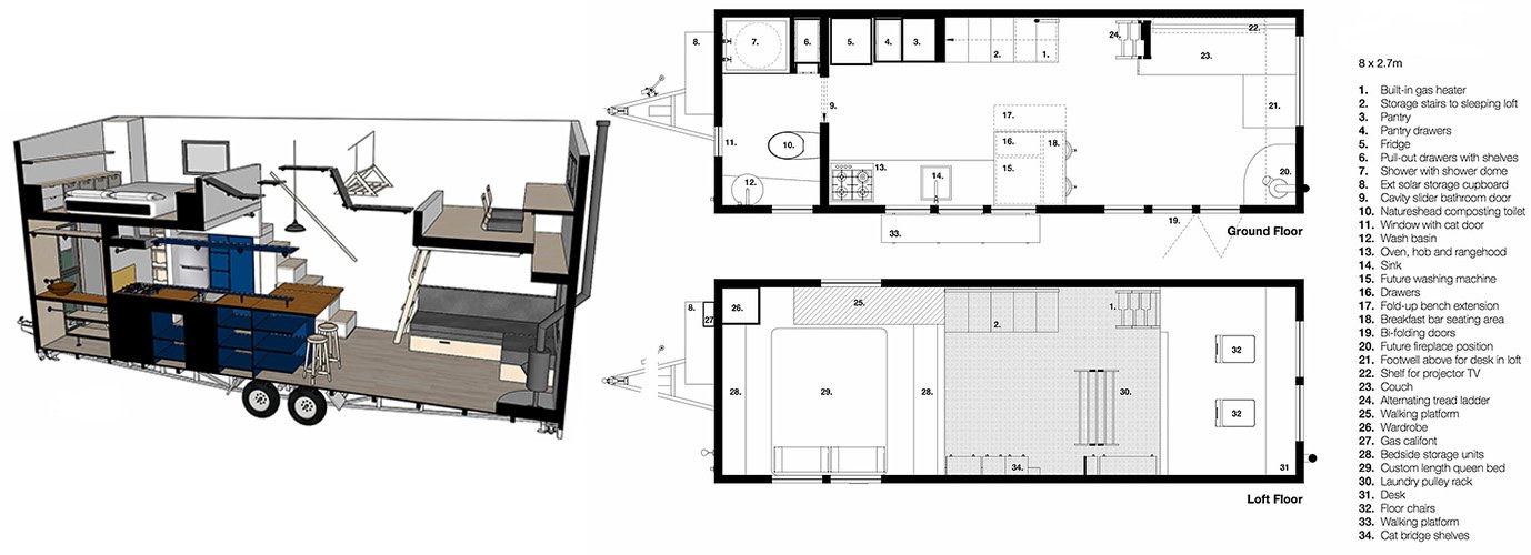
RL006

RL006

  • Length(m):8
  • Square(㎡):23
  • Width(m):2.7
  • Weight(t):6
  • Height(m):4.2
  • Sleeps:2
SHARE TO
INQUIRE NOW

Product Details

                        

            


            


Inquire Now

If you have any questions or needs about the product, please fill in the following form and we will contact you as soon as possible.